About the Property


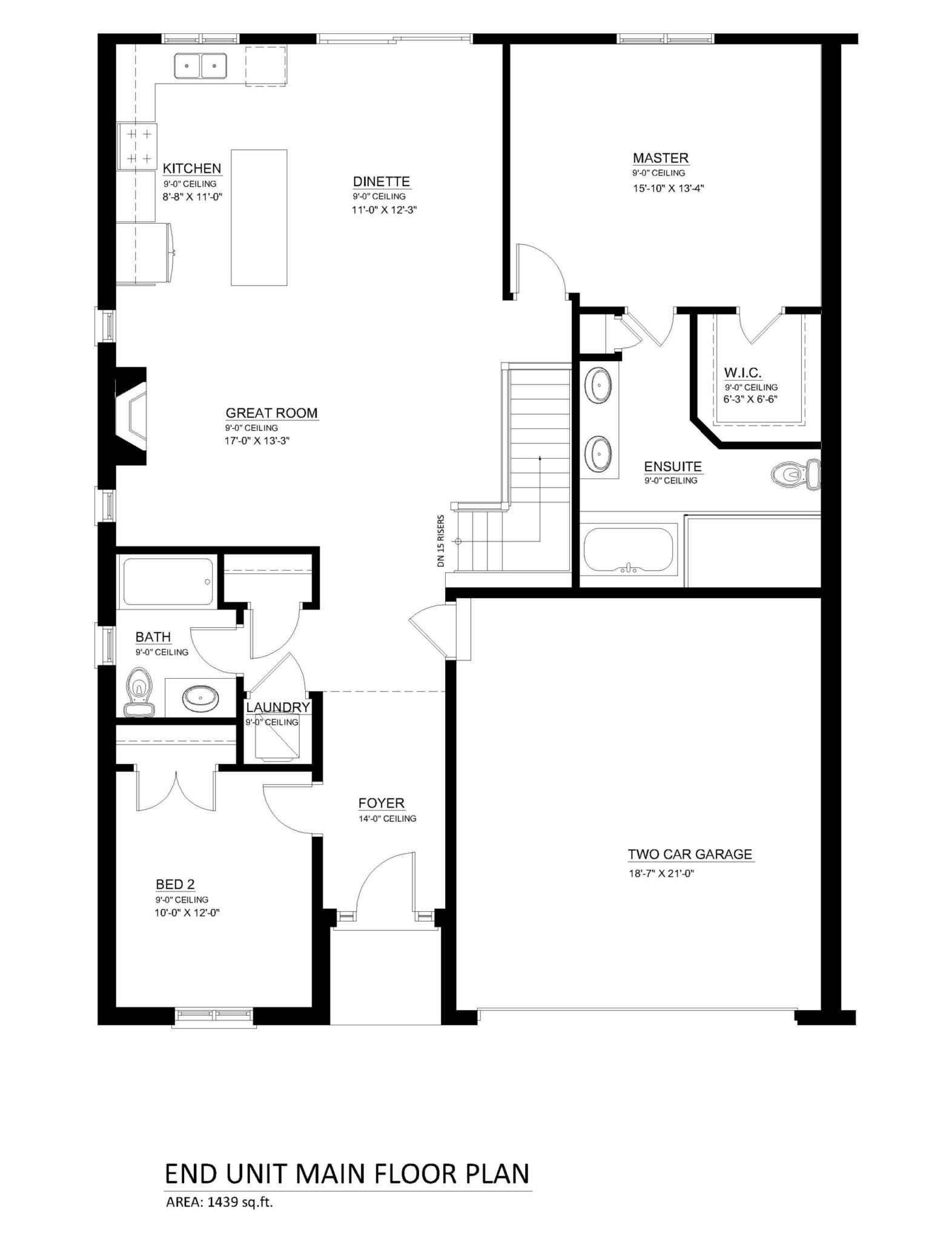
FOR LEASE: One floor living at its finest!! Located mins West of London, this 2019 built, attached bungalow offers over 1,440 sq ft of main floor living space, 2 bedrooms, 2 full baths, double car garage & LOADED with extras!! The striking curb appeal features a mix of traditional & contemporary design with stone, stucco & hardboard accents, complemented by a concrete driveway. The airy foyer flows to the spacious great room, flooded with natural light & complete with gorgeous engineered hardwood flooring, an abundance of pot lights, 9’ ceilings, iron rail staircase & brick surround natural gas fireplace. The gourmet white on brown kitchen features extensive cabinetry, Calacatta quartz counters, an oversized island, soft close hardware, high end appliances & a spacious eating area. The spacious master bedroom features a custom walk-in closet & luxurious 5pc ensuite with double sinks, quartz counters, deep soaker tub & curbless tile and glass shower. At the front of the home, there is a large 2nd bedroom & a 4pc guest bath. Main floor laundry & inside entry from the garage complete the main. The lower level with raised ceiling heights is open and bright, with tonnes of space for storage! The large stamped concrete patio is ideal for outdoor dining & summertime relaxation! Some bonus features include, main floor surround sound + outdoor speakers, central vac with “hide-a-hose”, security system with cameras & ipad integration. Located steps from Komoka Provincial Park & beautiful river trails, top rated schools, playgrounds, amenities & quick access to HWY 402! Welcome Home! For Lease at $2850 per month + utilities. Available immediately. Minimum 12 month lease. 

 

MLS#: 40435192

 

Devin Nadeau, Broker

devin@devinnadeau.com

&

Lindsay Reid, Broker

lindsayreid@royallepage.ca

 

Royal LePage Triland Realty, Brokerage

Independently Owned & Operated

519-672-9880

  • Price: $2,750/month

  • Number of Bedrooms: 2

  • Number of Bathrooms: 2

  • Type of Property: Bungalow/Row/Townhouse/Attached

  • Neighbourhood: Komoka

  • SQ Footage: 1,439

  • Parking: 2 driveway + 2 garage

Tenant pays: Cable TV, Heat, Hydro, Natural Gas, Tenant Insurance

Owner pays: Association Fee, Building Insurance, Building Maintenance, Common Elements, Exterior Maintenance, Garbage Removal, Landscaping, Management Fees, Property Taxes, Snow Removal, Water Heater

Lease requirements: Credit Check, Deposit , Lease Agreement, Rental Application, Other

Construction Materials: Brick, Hardboard, Stone, Stucco (Plaster)

Interior Features: Air Exchanger, Auto Garage Door Remote(s), Central Vacuum, On Demand Water Heater, Sump Pump, Water Heater Owned

Security Feature: Alarm System, Carbon Monoxide Detector(s), Security System, Smoke Detector(s)

Basement: Full Basement, Unfinished, Development Potential

Laundry access: Electric Dryer Hookup, In hall, Inside, Laundry Closet, Main Level, Washer Hookup

Cooling: Central Air, Energy Efficient

Heating: Forced Air, Gas

Fireplace: 1/Living Room, Natural Gas

Inclusions: Built-in Microwave, Carbon Monoxide Detector, Central Vac, Dishwasher, Dryer, Garage Door Opener, Refrigerator, Smoke Detector, Stove, Washer, Window Coverings

Area Influences: Cul de Sac/Dead End, Highway Access, Lake/Pond, Landscaped, Major Highway, Open Spaces, Park, Playground Nearby, Quiet Area, Rec./Community Centre, Schools, Shopping Nearby

Want to join our community of happy clients?

Reach out and we'll be in touch.

  • This field is for validation purposes and should be left unchanged.